Z43H帶導流平板閘閥
產品概況
產品型號:Z43H
公稱通徑:DN6-2000mm
公稱壓力:1.0-32Mpa
連接方式:法蘭、焊接、螺紋等
主體材質:WCB、LCB、A105、CF8、CF3、CF8M、CF3M、C5、WC6
傳動方式:手動、蝸輪傳動、電動、氣動、液動、電液動等
使用介質:水、蒸汽、油、酸堿類等
Z43H帶導流平板閘閥概述
百鋼閥門集團生產銷售的Z43H帶導流平板閘閥適用于Class150~900/PN1.0~16.0MPa,工作溫度-29~121℃的石油、天然氣、水、油品等管路上,用于截斷或接通管路中的介質。
Z43H帶導流平板閘閥應用范圍
平板閘閥適用于天然氣,石油,化工,環保,城市管道,燃氣管線等輸送管線,放空系統和汽儲存裝置上,用作啟閉設備。
Z43H型帶導流孔單閘板式平板閘閥適用于天然氣開采和凈化的長輸管線。
Z43H帶導流平板閘閥結構特點
1、閥座采用O形密封圈密封和施加預緊力的浮動閥座結構,使平板閘閥進出口雙向密封;并且該結構的啟閉力矩僅為普通閥門的1/2,能達到輕松開、關閥門
2、在全開時,通道平滑為直線,流阻系數極小,無壓力損失,可通毛球清掃管線
3、采用帶自密封能力的填料結構,無需經常調節,開、關極為輕便,且密封性可靠,填料函處設有輔助密封油脂注入結構,密封性能可靠,真正達到零泄漏;解決了通用閥門填料處容易外漏的弊病。
4、平板閘閥關閉時能自動卸掉內腔高壓,保證使用安全
5、全封閉結構,防護性能好,可適應全天候要求
1.閥座的密封結構應為彈性有預緊力,上、下游密封座同時密封的結構。閥座與密封物間始終為面對面密封。
2.閥座有自清洗功能,并且在閥門開啟或關閉過程中不受氣流的直接沖刷。閥座應由有潤滑、不磨損材料制成。
3.閥門執行機構的故障不會影響到閥門的其它部分,維修和更換工作能夠在不拆下閥門的情況下進行。
(1) 軛架套管 – 鋁青銅軛架套管配置針形止推軸承,較大程度減少操作扭矩。
(2) 閥桿 – 螺紋長度直到托架;銷釘和點焊;具有穩定性。
(3) 壓力密封 – 結構簡單,配置分段扣環和鍍銀低碳鋼墊圈,有助于拆卸和實現較好的閥帽密封。
(4) 閥座環 – 焊接閥座環垂直于流動通道,易于維護。
(5) 執行機構 – 這些閥門可以配置電動、液動或氣動執行機構。DN300以下配置標準手動手輪,DN350以上配置斜齒輪操作機構。
(6) 軛架 – 完全裝配式軛架通過抗震測試,易于維護和安裝執行機構。
(7) 壓蓋 – 兩件式,自調節壓蓋,避免被彈出。
(8) 整體后座 – 硬面,使用壽命最長。
(9) 閥瓣 – 彈簧負載閥瓣能夠自行調節,減少執行機構的扭矩需求。
(10) 整體止動 – 整體鑄造托架止動裝置,定位組裝的托架閥瓣,使得閥座更加穩定可靠。
Z43H帶導流平板閘閥標準規范
設計制造標準:JB/T 5298
結構長度標準:JB/T 5298
連接法蘭標準:GB/T 9113
壓力溫度等級:GB/T 12224-2005
試驗檢驗標準:GB/T 13927-2008、JB/T 5298
Z43H帶導流平板閘閥 零件材料與工況
|
零件名稱 |
零部件材料 |
|||
|
JB/T7298 |
API 6D |
|||
|
閥門/閥蓋 |
WCB |
WCB |
A352-LCB |
A351-CF8M |
|
閘板 |
2Cr13+ENP |
20CrMoV+STL |
ANSI 410+ENP |
ANSI 316+ENP |
|
閥桿 |
2Cr13 |
2Cr13 |
A182-F6a |
A182-F316S |
|
閥座 |
25+PTFE |
20CrMoV+STL |
A105+PTFE |
A182-F316+PTFE |
|
填料 |
NBR/FPM |
柔性石墨 |
聚四氟乙烯 |
|
|
墊片 |
18-8/柔性石墨 |
|||
|
螺栓 |
35 |
35CrMo |
A193-B7M |
A193-B8 |
|
適用溫度 |
-29~250℃ |
-29~550℃ |
-46~250℃ |
-40~200℃ |
|
適用介質 |
水、油品 |
蒸汽、油品 |
丙烷、乙烯 |
硝酸類 |
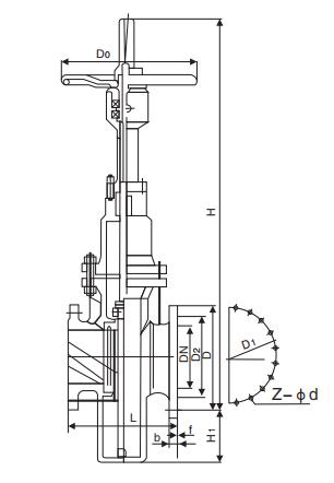
Z43H帶導流平板閘閥主要尺寸及重量

|
公稱通徑 |
結構長度L |
H |
H1 |
||||
|
DN |
NPS |
手動 |
傘齒輪傳動 |
氣動 |
電動 |
||
|
25 |
11/4 |
127 |
\ |
\ |
\ |
\ |
\ |
|
32 |
11/4 |
165 |
385 |
\ |
\ |
\ |
63 |
|
40 |
11/2 |
165 |
385 |
\ |
\ |
\ |
63 |
|
50 |
2 |
178 |
415 |
\ |
\ |
\ |
74 |
|
65 |
21/2 |
190 |
462 |
\ |
\ |
\ |
83 |
|
80 |
3 |
203 |
563 |
\ |
\ |
\ |
95 |
|
100 |
4 |
229 |
648 |
\ |
\ |
\ |
109 |
|
125 |
5 |
254 |
715 |
\ |
\ |
\ |
125 |
|
150 |
6 |
267 |
836 |
\ |
636 |
979 |
144 |
|
200 |
8 |
292 |
1034 |
\ |
796 |
1096 |
176 |
|
250 |
10 |
330 |
1230 |
\ |
960 |
1297 |
204 |
|
300 |
12 |
356 |
1405 |
1460 |
1118 |
1520 |
240 |
|
350 |
14 |
381 |
1607 |
1642 |
1305 |
1768 |
263 |
|
400 |
16 |
406 |
1775 |
1865 |
1425 |
1935 |
293 |
|
500 |
20 |
457 |
2176 |
2251 |
1724 |
2300 |
350 |
|
600 |
24 |
508 |
2564 |
2642 |
1995 |
2770 |
403 |
|
700 |
28 |
610 |
2950 |
3128 |
2293 |
3570 |
450 |
|
800 |
32 |
660 |
3335 |
3515 |
2675 |
3985 |
507 |
|
900 |
36 |
711 |
3720 |
3900 |
3060 |
4370 |
555 |
|
1000 |
40 |
811 |
4105 |
4290 |
3445 |
4755 |
610 |
溫馨提示:
本文中所有文字、數據、圖片均只適用于參考。需要查看更多的Z43H帶導流平板閘閥性能參數、結構尺寸參數、價格等詳情,或要求高質量印刷樣本,請聯系我們。