ZYC自力式壓差控制閥
產品概況
產品型號:ZYC
公稱壓力:1.6MPa
公稱通徑:15~125mm
適用介質:水、油等非腐蝕性液體
適用溫度:0~100℃
壓差控制范圍:定壓差型10KPa、20KPa、30KPa
法蘭標準:GB/T 17241.6 GB/T 9113
試驗標準:GB/T 13927 API598
ZYC自力式壓差控制閥概述:
百鋼閥門集團生產銷售的ZYC型自力式壓差控制閥,是一種利用介質自身的壓力變化進行自我控制而保持流經該被控系統介質壓差不變的節能產品。適用于供暖方式采用雙管系統的壓差控制,保證系統的壓差基本不變,減低噪音,平衡阻力,消除熱網的水力失調。
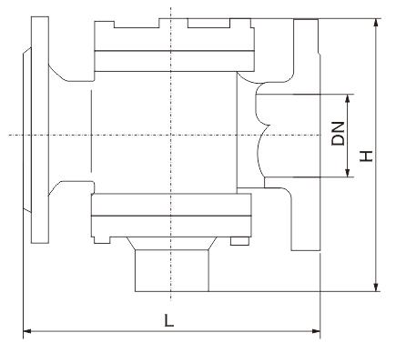
ZYC自力式壓差控制閥主要外型尺寸:

| DN(mm) | 連接方式 | L(mm) | H | H1 | 流量m3/h | 適用介質 | 介質溫度 | 主要零件材料 |
| 15 | 螺紋 | 110 | 72 | 98 | 0.2-1 | 水 | 0~100℃ |
閥體,上蓋和下蓋 為鑄造黃銅,閥芯 為銅,膜片為尼龍 強化橡膠,彈簧為 不銹鋼 |
| 20 | 110 | 72 | 98 | 0.3-1.5 | ||||
| 25 | 115 | 82 | 102 | 0.5-2 | ||||
| 32 | 法蘭 | 160 | 91 | 94 | 1-4 | |||
| 40 | 200 | 147 | 112 | 1.5-6 | ||||
| 50 | 215 | 120 | 112 | 2-8 | ||||
| 65 | 220 | 125 | 120 | 3-12 | ||||
| 80 | 275 | 188 | 133 | 5-20 | ||||
| 100 | 290 | 208 | 160 | 10-52 | ||||
| 125 | 310 | 226 | 175 | 15-45 | ||||
| 150 | 350 | 258 | 195 | 30-80 | ||||
| 200 | 430 | 301 | 230 | 40-180 | ||||
| 250 | 520 | 367 | 265 | 100-300 | ||||
| 300 | 635 | 430 | 300 | 150-500 | ||||
| 350 | 670 | 504 | 340 | 200-700 |
溫馨提示:
本文中所有文字、數據、圖片均只適用于參考。需要查看更多的ZYC自力式壓差控制閥性能參數、結構尺寸參數、價格等詳情,或要求高質量印刷樣本,請聯系我們。